







Office For Sale Sleaford
PROPERTY ID: 142378
PROPERTY TYPE
Office
STATUS
Available
SIZE
5,402 sq.ft
Key Features
Property Details
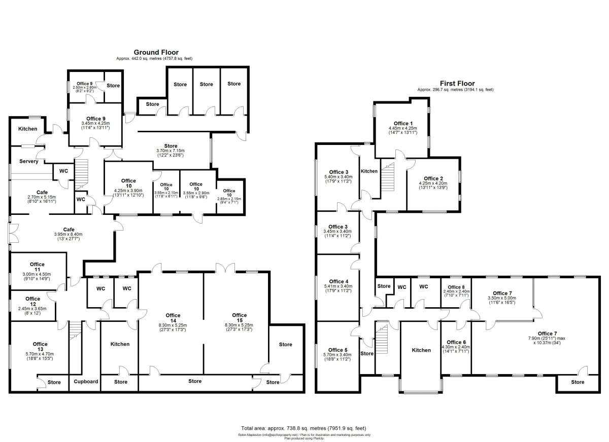
The property comprises an attached, two storey Office/Café Premises of brick construction with a pitched roof.
The property is arranged as 15 serviced Office Suites and a Ground Floor Café. Each floor benefits from shared Kitchen and WC facilities. The current gross rental income is £66,120 per annum and where the estimated gross rental income when fully let is £95,520 per annum.
The rent for each Office Suite is inclusive of utility bills and we have been informed that total utility costs are approximately £12,000 per annum. The majority of tenants also pay a contribution towards internet.
Town Centre, Multi-let Serviced Office / Cafe Investment
- Current Rental Income Is £66,120 P.a.x. Erv When Fully Let £95,520 P.a.x
15 Office Suites And Ground Floor Cafe
Shared Kitchen & Wc Facilities.
Investment Opportunity
Kesteven Business Centre, Kesteven Street, Sleaford, Ng34 7dt
Guide Price - £650,000
Investment Opportunity
Kesteven Business Centre, Kesteven Street, Sleaford, Ng34 7dt
Guide Price - £650,000
Detailed Description
The Property Comprises An Attached, Two Storey Office/café Premises Of Brick Construction With A Pitched Roof.
The Property Is Arranged As 15 Serviced Office Suites And A Ground Floor Café. Each Floor Benefits From Shared Kitchen And Wc Facilities. The Current Gross Rental Income Is £66,120 Per Annum And Where The Estimated Gross Rental Income When Fully Let Is £95,520 Per Annum.
The Rent For Each Office Suite Is Inclusive Of Utility Bills And We Have Been Informed That Total Utility Costs Are Approximately £12,000 Per Annum. The Majority Of Tenants Also Pay A Contribution Towards Internet.
Location
Kesteven Business Centre Occupies A Prominent Town Centre Position Within The Bustling Market Town Of Sleaford Which, As Of The 2021 Census, Had A Population Of Approximately 18,000.
Sleaford Occupies A Strategic Position In The Centre Of The County Of Lincolnshire And Is Situated At The Junction Of The A15 & A17 Trunk Roads From Which Easy Access Can Be Obtained To The Larger Conurbations Of Boston & Newark Together With The City Of Lincoln To The North, All Of Which Can Be Reached Within Approximately 20 Minutes Drive Time.
The Property Is Located Just 0.5 Miles To North Of Sleaford Railway Station, 0.1 Miles To The East Of The Market Place And 0.2 Miles From Southgate.